本文
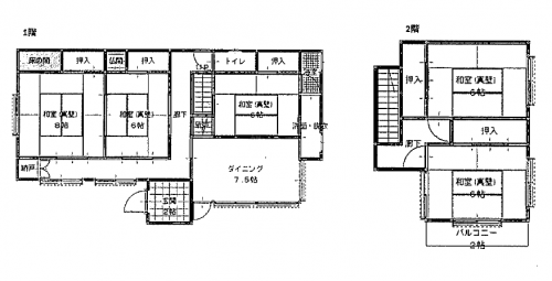
【売買550万円】 鴨川市貝渚 海近で開放的な暮らし 2階建て 5DK
| 所在地 | 鴨川市貝渚付近 |
|---|---|
| 交通 | JR外房線「安房鴨川駅」より1.6km |
| 契約形態(売買) | 550万円 |
| 構造 | 木造瓦葺2階建 |
| 間取り | 5DK |
| 敷地面積 |
170.9平方メートル |
| 延床面積 | 101平方メートル |
| 建築時期 | 昭和59年 |
| 電気 | 有り |
| 水道 | 公営水道 |
| ガス | プロパンガス |
| 駐車場 |
あり(1台) |
| その他特記事項 |
|
| 主要施設へのアクセス |
|
|
担当業者 ※(空き家バンク協力会員不動産業者) |
会社名:株式会社ケイテイエス |















